Vecchia Enel – Three newly renovated, contemporary duplex apartments housed within a beautifully restored 1930s Palazzo, ideally located in the heart of the city of Luino.
Luino – Lago Maggiore
























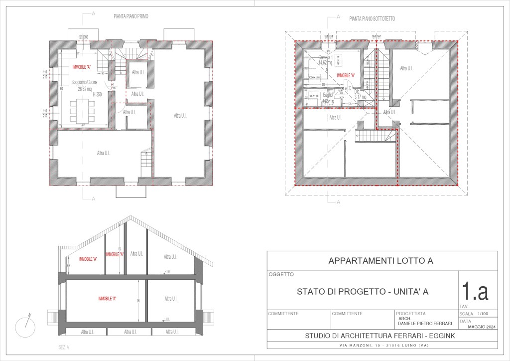
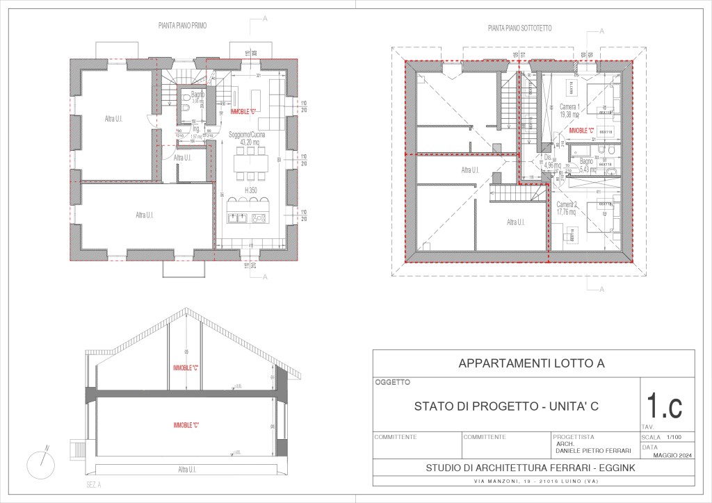
The entire building, originally constructed in the 1930s, has been fully rebuild internally. All structural elements – walls, floors, stairs and roof – are brand new. Modern systems including electrical wiring, plumbing and central heating have been completely reinstalled. Each unit is insulated to meet the highest A4 energy efficiency standard. Sustainable features include a heat pump for heating and hot water, photovoltaic roof panels and dedicated EV charging stations for each unit. Triple-glazed windows provide excellent thermal and sound insulation, while internal walls are soundproofed for maximum privacy. Set slightly back from the main street in a secluded, enclosed setting, the property offers added tranquility. Each duplex features a main living area on the first floor, with bedrooms in the attic illuminated by 17 roof windows, offering natural light and stunning night sky views. Each apartment includes a private parking space and garage in a newly constructed adjacent parking facility. A key focus of the project is the meticulous restoration of the building’s original façade, preserving its historic character.















Villa Cristina – Luino

















Brezzo di Bedero – newly build Villa on the lake shore












Project awaiting building permit – expected build start 2025



